Where Serendipity Meets Creation
Creators' Garage
世の変化と想像が、地方から生まれる時代へ。
山から流れ出る小川が交わり、作用しあった先に大海へと流れていく「デルタ」という地形のように、新たな価値やアイディアを生み出す「クリエイター」たちが各地から集い、交わることで、これまで誰も予想できなかったような新しい流れを生んでいくような拠点を目指します。
新しい流れを、地方から。
コワーキング
晴れた日には「太平山」を一望できる開放的なスペース。普段とは少し違う環境で、気分転換はいかがですか?お仕事、勉強、読書まで、さまざまなシーンでご利用いただけます。
Coworking plans
ONE DAYプランを購入-
ONE DAY (ドロップイン)
¥1,200/日
利用時間 10:00~18:00
利用方法 コワーキング入口の案内に従ってご利用ください。(当日券のみ販売)
登録人数 1名
-
Basic (ベーシック)
¥22,000/月
入会費 ¥11,000
利用時間 24時間
登録人数 1名
*無料で会議室をご利用いただけます。要予約
-
Corporate (コーポレート)
¥44,000/月
入会費 ¥11,000
利用時間 24時間
登録人数 5名
同時利用 3名
*無料で会議室をご利用いただけます。要予約
その他にも法人登記、郵便・宅配受け取り、プライベートロッカー付き
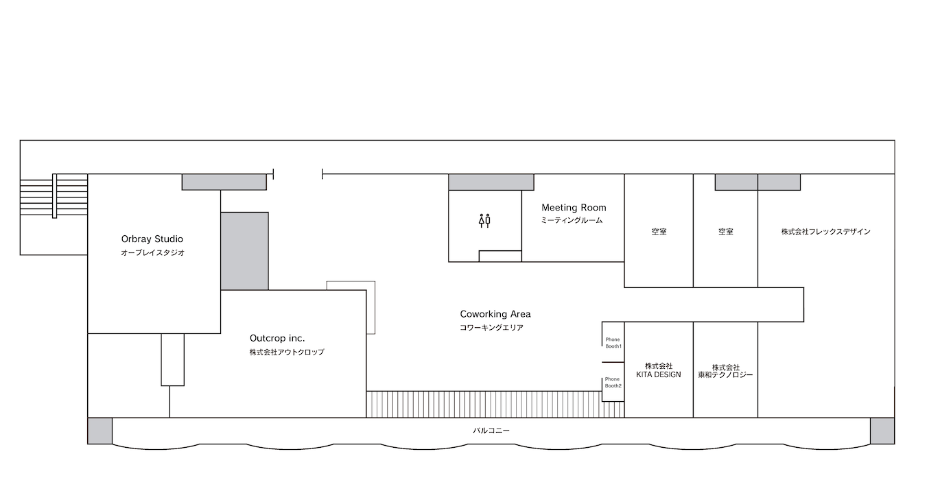
Floor map
コワーキング施設案内
-
フォンブース
オンライン会議に最適ブースが2部屋あります。
*コワーキングエリア利用者は無料
二時間以上の連続利用、占有はお控えください。
-
キッチンエリア
シンク、冷蔵庫、電子レンジを完備しております。
-
フォーカスエリア
晴れた日には「太平山」が一望できる窓辺の作業スペースです。
レンタルスタジオ ORBRAY STUDIO
写真撮影、動画撮影、配信、イベント利用などの目的でご利用いただけるスペースです。
このスタジオから生まれるコンテンツが、地域と世界をつなぎます。
*当スタジオはOrbray株式会社様に協賛いただいています。
利用時間 10:00~18:00(営業時間外での利用は要相談)
利用方法 事前予約必須。原則として利用希望日の2週間前までに専用フォームより申し込みください。
(ご記入いただいた内容に応じて、利用料金等の詳細をお伝えいたします)
ミーティングルーム
SONY 55型モニターを設置したミーティングルーム。ホワイトボードなども完備。
最大許容人数10名。
利用時間 10:00~18:00
利用方法 利用希望時間前までにご予約ください。
レンタルオフィス
レンタルオフィスは全5部屋。県内外から多様な業種の入居者さんが集います。
それぞれの専門性を越えた交流が生まれる協業の場です。
利用時間 入居者は24時間利用可能
利用方法 空室情報、利用料などに関しての詳細はメールにてお問合せください。